雜物電梯返回列表
福德斯雜物電梯一般分為兩種:落地式和窗口式,可提供快捷、方便,經濟的小型貨物運輸,為用戶大大節省了時間及人力成本。福德斯餐梯采用工業電腦(PLC)控制,品種齊全、結構新穎、制造精良;具有安全可靠、運行穩定、操作方便等特點。可滿足多種設計需要。

產品特點:
1.窗口門、轎箱門采用直分式手動門,運行速度為0.4M/S
2.廳門框、門、轎箱均采用進口發紋不銹鋼鋼制作
3.優質的不銹鋼制作工藝,外觀更精美
4.豪華型外觀呼梯選層顯示板
5.智能選層操作
6.各層通訊聯絡電話
7.自動返回基站功能
8.全套安全防護功能
9.定時功能
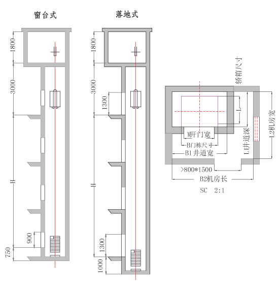
雜物電梯土建參數

雜物電梯圖紙
